PROJET / Centre administratif

064
Architecte Geneve définition
Construction du siège administratif de G. Dentan SA

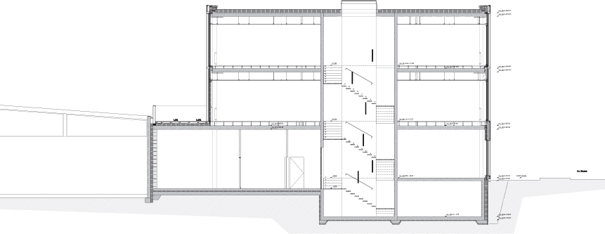
Le projet consiste à la construction d’un ouvrage destiné à accueillir le nouveau siège du Groupe G.Dentan Genève sa. L’entreprise y aménagera au rez-de-chaussée son dépôt de matériels et de fournitures. Au premier étage, est aménagé les bureaux de gestion dudit dépôt, ainsi que la logistique.

Le caractère du bâtiment est en adéquation avec le site et son caractère industriel. A l’extérieur, l’aluminium et le verre, résonnent avec son contexte immédiat ; depuis l’intérieur, les façades Est et Ouest s’ouvrent entièrement vers les paysages environnants, profitant de la forte présence de nature des bois-des-frères.

Le volume construit correspond au gabarit maximal de construction. L’extrusion de la totalité de la parcelle a produit un volume pur.

Toute la composition de la façade suit ce geste d’extrusion qui se retrouve jusque dans le détail des profilés en aluminium de façade. En détournant l’expression de la « structure en façade » du style international, ces profilés « I » surgissent du sol avec un rythme très rapproché et suggèrent que le bâtiment puisse être étiré à l’infini engendrant des proportions d’ouvertures très allongées et inhabituelles. A l’intérieur, un jeu de matériaux bruts, originaux et divers viennent définir les espaces

localisation
Vernier / CH
maître de l'ouvrage
G. Detan SA
coût
3'300'000.-
date
2011-13
type de mandat
direct
projet
[GAA] GUENIN Atelier d'Architectures
collaborateur(s)
O. Guenin – L. Rahaingonjatovo – S. Soumpholphakdyn – O. Ma Fat
réalisation
Spitia
Architecte Geneve Architecte Geneve guenin architecte Vernier / CH  Centre administratifArchitecte Geneve guenin architecte Vernier / CH  Centre administratifArchitecte Geneve guenin architecte Vernier / CH  Centre administratifArchitecte Geneve guenin architecte Vernier / CH  Centre administratifArchitecte Geneve guenin architecte Vernier / CH  Centre administratifArchitecte Geneve guenin architecte Vernier / CH  Centre administratifArchitecte Geneve guenin architecte Vernier / CH  Centre administratifArchitecte Geneve guenin architecte Vernier / CH  Centre administratifArchitecte Geneve guenin architecte Vernier / CH  Centre administratifArchitecte Geneve guenin architecte Vernier / CH  Centre administratifArchitecte Geneve guenin architecte Vernier / CH  Centre administratifArchitecte Geneve guenin architecte Vernier / CH  Centre administratifArchitecte Geneve guenin architecte Vernier / CH  Centre administratifArchitecte Geneve guenin architecte Vernier / CH  Centre administratifArchitecte Geneve guenin architecte Vernier / CH  Centre administratifArchitecte Geneve guenin architecte Vernier / CH  Centre administratifArchitecte Geneve guenin architecte Vernier / CH  Centre administratifArchitecte Geneve guenin architecte Vernier / CH  Centre administratifArchitecte Geneve guenin architecte Vernier / CH  Centre administratifArchitecte Geneve guenin architecte Vernier / CH  Centre administratifArchitecte Geneve guenin architecte Vernier / CH  Centre administratifretour
Architecte Geneve 


Spitia Entreprise générale: www.spitia.ch

retour