PROJET / Logement Vernier 115

091
Architecte Geneve définition
ANALYSE DU SITE ET DE SES ENJEUX/
Le site de ce projet comporte un ensemble de contraintes déterminantes pour la réponse architecturale proposée ici : risques OAPM, bruit, orientation nord/sud des façades principales donnée par le PLQ. L'enjeu de ce projet est donc de prendre en compte toutes ces données et de produire un projet qualitatif et simple.

LOGEMENTS ET BUREAUX: MODULARITE ET SIMPLICITE/
Le projet des logements est une réponse claire et qualitative aux contraintes du site et aux exigences des logements contemporains : le projet se protège de la route de Vernier au nord et s'ouvre vers les terrains de sport au sud. Ainsi, on trouve au nord tous les éléments secondaires du programme de logements : escaliers ; cuisine. Toutes les pièces à vivre et les chambres s'orientent donc au sud ou sur les pignons des bâtiments.
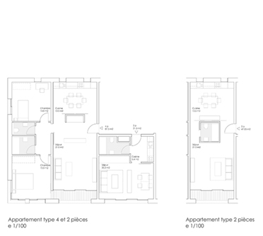
Les logements sont traversants et offrent une pièce à vivre généreuse qui se prolonge en balcon vers le sud. Les espaces sont conçus avec le moins de contraintes spatiales possibles pour laisser libre l'appropriation des logements par les habitants.
Les typologies sont dessinées de manière à pouvoir passer d'un type d'appartement à l'autre très facilement, pour une meilleure modularité du plan et une évolution future possible pour les logements. Le concept est le suivant : la base constitué de la pièce à vivre est toujours la même (excepté pour les 2 pièces). Seul l'attribution des chambres change. Ainsi, un 5 pièce peut aisément devenir un 4 ou 6 pièces selon le nombre de chambres rattachées à la pièces à vivre.

BUREAUX/
Tout comme les logements, le concept du plan des bureaux repose sur la simplicité à moduler les espaces en fonction des besoins des utilisateurs et des exploitants. Ainsi, les parties communes sont centralisées entre les noyaux de circulations verticales pour qu'elles puissent être facilement mutualisées entre les différents utilisateurs des bureaux. Les escaliers sont isolés des espaces des bureaux pour ne pas faire passer les habitants dans l'étage des bureaux.

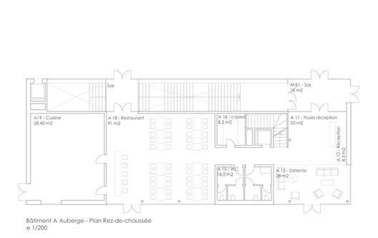
AUBERGE DE JEUNESSE: SPATIALITE ET PLAISIR DU VIVRE ENSEMBLE/
Le principe de répartition des espaces dans le plan est le même que pour les logements, avec pour contrainte supplémentaire les risques OPAM, puisque le bâtiment se trouve dans le rayon d'évacuation des citernes situées à l'ouest. Pour ce faire, aucun programme ne s'ouvre sur la façade ouest excepté la porte de livrason de la cuisine qui ne constituera pas en tout cas une sortie de secours.
L'évacuation se réalisera en façade est, à l'opposée de la position des citernes impliquant les réglementations OPAM. Les façades orientées vers la route de Vernier et la route du Bois-des-Frères ainsi que les façades adjacentes jusqu'à un retour de 25 mètres auront une résistance au feu EI 60 et seront munies de fenêtres EI30.

Le programme se réparti de la même manière que pour les logements. Au nord sont positionnés les locaux humides et les circulations, au sud se trouvent les espaces de vie au RDC et les chambres dans les étages. Ces dernières donnent toutes sur des larges balcons séquencés par un mobilier fixe qui partitionne ces espaces extérieurs différemment à chaque étage. Cette démarche permet une animation des étages en façade et crée des espaces de rencontre à petite échelle pour les pensionnaires. Une attention particulière est portée eu traitement des espaces communs. A chaque étage, ils constituent un espace de rencontre agréable et localisé à un emplacement privilégié dans le plan pour favoriser les échanges entre les occupants tout en les préservant des gênes éventuelles lié au bruit de ces espaces.
Le RDC accueille un sas d'entrée commun avec la salle de spectacle, le hall de l'auberge, le restaurant et sa cuisine, les sanitaires, les casiers et le foyer. Ce dernier jouit d'une position privilégiée et possède une spatialité agréable puisqu'il se développe sur deux niveaux avec une partie en double hauteur au RDC et une partie en mezzanine. Sa terrasse est commune avec celle du restaurant.

SALLE DE SPORT/
Le bâtiment de la salle de sport est le plus exposé aux risques OPAM. La répartition programmatique dans le bâtiment est simple et permet un usage simultané de tous les éléments du programme.
Les terrains de tennis de table sont positionnes au sous-sol, à la suite et sont visible par le public depuis un balcon donnant sur l'espace des terrains. A u RDC se trouvent le hall, seul espace ouvert et traversant de ce projet, et les vestiaires et administration. A l'étage de trouvent les deux terrains de squash accessibles par le noyau de circulation central.

SALLE DE SPECTACLE/
Afin de préserver le site et ses habitants, le programme de salle de spectacle est positionné au sous-sol sous l'auberge de jeunesse. Après analyse du programme développé sur le site, il est apparut évident que ces deux programmes étaient les plus à même de cohabiter ensemble. Jeunesse et spectacle fonctionnement toujours bien ensemble. Pour autant, le projet a été pensé pour que ces deux programmes fonctionnent indépendamment et qu'ils ne soient pas une nuisance l'un pour l'autre. Ainsi, un sas commun lie les deux programmes tout en les isolant. Depuis le sas, on descend par un escalier monumental au deuxième sous-sol pour accéder au foyer de la salle de spectacle ou aux studios de répétition et enregistrement. L'escalier se développe dans une triple hauteur permettant d'amener de la lumière naturelle dans l'entrée du foyer de la salle. L'accès au restaurant de l'auberge se fait donc par une passerelle protégée du feu au dessus du vide de l'escalier monumental.
L'espace de salle de spectacle est traité acoustiquement comme « une boite dans la boite » pour éradiquer le bruit et les vibrations vis-à-vis du bâtiment de l'auberge.
Ce dispositif d'escalier monumental permet aussi d'accueillir un grand nombre de personnes dans la continuité du foyer de la salle de spectacle tout en restant en intérieur, ce qui limite les nuisances sonores sur le site pour les habitants.

MATERIAUX ET FACADES/
Bien que les différents bâtiments comportent des programmes distincts, il nous est apparu crucial de créer une unité de matériaux sur le site. Tous les bâtiments sont traités avec une façade ventilée en Eternit ondulé. Ce matériau pérenne et résistant est riche en contrastes. Il est un moyen d'apporter du relief aux façades. Le tout est réchauffé par des menuiseries en bois et des stores. Les nez de dalles apparents sont traités en béton. L'alliance de ces trois matériaux apporte une chaleur graphique au projet.
Le dessin des façades répond aux exigences du site pour les respects des contraintes de bruits et OPAM : façades fermée au nord et ouvertes au sud.

ESPACES EXTERIEURS ET FLUX SUR LE SITE/
L'idée des aménagements extérieurs est de structurer un mail central piéton donnant accès aux différents bâtiments et d'offrir un maximum d'espaces vert de type prairie urbaine. Côté Route de Vernier, l'alignement des bâtiments est maintenu avec des arbres plantés densément pour isoler au maximum le cœur d'îlot de la route. Au sud est créée la prairie urbaine en lien avec les terrains de sport et les terrasses des différents équipements.
Le mail central est traité comme une rue piétonne sur laquelle viennent s'accrocher les différents bâtiments du projet. Des différences de traitement de sol et le mobilier urbain dessinent les séquences d'entrée des différents bâtiments et qualifie des parvis devant les bâtiments. L'espace de jeux central constitue une forme d'Agora pour les habitants du quartier.

Les flux automobiles sont limités à la voie d'accès côté rue du bois des frères. Les livraisons de la cuisine du restaurant et de la salle de spectacle se feront par cette voie.

GESTION DES EAUX PLUVIALES/
Le projet limite de manière générale l'imperméabilisation des sols tout en s'appuyant sur la présence de nature tel que des zones de gazon et prairie qui s'étalent sur la partie sud de l'intervention.
De même, les toitures de bâtiments seront végétalisées de manière à favoriser la gestion et la rétention des eaux à ciel ouvert. Dans le même temps les performances hygrothermiques des bâtiments sont améliorés.

localisation
Vernier / GE / CH
maître de l'ouvrage
Ville de Genève
coût
-
date
2015
type de mandat
Concours
collaborateur(s)
M. Frey - A. Clemente - L. Rahaingonjatovo - O. Guenin - P. Hüni
association
P. Huni Architectes / Aeby - Contat - Dubouchet
Architecte Geneve Architecte Geneve guenin architecte Vernier / GE / CH Logement Vernier 115Architecte Geneve guenin architecte Vernier / GE / CH Logement Vernier 115Architecte Geneve guenin architecte Vernier / GE / CH Logement Vernier 115Architecte Geneve guenin architecte Vernier / GE / CH Logement Vernier 115Architecte Geneve guenin architecte Vernier / GE / CH Logement Vernier 115Architecte Geneve guenin architecte Vernier / GE / CH Logement Vernier 115Architecte Geneve guenin architecte Vernier / GE / CH Logement Vernier 115Architecte Geneve guenin architecte Vernier / GE / CH Logement Vernier 115Architecte Geneve guenin architecte Vernier / GE / CH Logement Vernier 115Architecte Geneve guenin architecte Vernier / GE / CH Logement Vernier 115Architecte Geneve guenin architecte Vernier / GE / CH Logement Vernier 115Architecte Geneve guenin architecte Vernier / GE / CH Logement Vernier 115Architecte Geneve guenin architecte Vernier / GE / CH Logement Vernier 115Architecte Geneve guenin architecte Vernier / GE / CH Logement Vernier 115Architecte Geneve guenin architecte Vernier / GE / CH Logement Vernier 115Architecte Geneve guenin architecte Vernier / GE / CH Logement Vernier 115Architecte Geneve guenin architecte Vernier / GE / CH Logement Vernier 115Architecte Geneve guenin architecte Vernier / GE / CH Logement Vernier 115Architecte Geneve guenin architecte Vernier / GE / CH Logement Vernier 115Architecte Geneve guenin architecte Vernier / GE / CH Logement Vernier 115Architecte Geneve guenin architecte Vernier / GE / CH Logement Vernier 115Architecte Geneve guenin architecte Vernier / GE / CH Logement Vernier 115retour
Architecte Geneve 


P. Hüni Architectes: www.huni.ch

retour