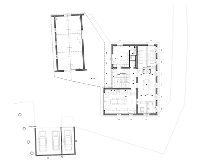
PROJET / Villa MRZ (les plans)

022
Architecte Geneve définition
Transformation d'une ancienne ferme avicole en logement
localisation
Versoix / CH
maître de l'ouvrage
privé
coût
non communiqué
date
2002-06
type de mandat
direct
projet
GUENIN - LACROIX Architectes
collaborateur(s)
O. Guenin - P. Guenin - H. Lacroix - J. P. Pfister - M. Hernández
réalisation
[GAA] GUENIN Atelier d'architectures
Architecte Geneve Architecte Geneve guenin architecte Versoix / CH Villa MRZArchitecte Geneve guenin architecte Versoix / CH Villa MRZArchitecte Geneve guenin architecte Versoix / CH Villa MRZArchitecte Geneve guenin architecte Versoix / CH Villa MRZArchitecte Geneve guenin architecte Versoix / CH Villa MRZArchitecte Geneve guenin architecte Versoix / CH Villa MRZArchitecte Geneve guenin architecte Versoix / CH Villa MRZArchitecte Geneve guenin architecte Versoix / CH Villa MRZArchitecte Geneve guenin architecte Versoix / CH Villa MRZArchitecte Geneve guenin architecte Versoix / CH Villa MRZArchitecte Geneve guenin architecte Versoix / CH Villa MRZArchitecte Geneve guenin architecte Versoix / CH Villa MRZretour
Architecte Geneve 


Voir les photos du projet.

Publication sur Homify:
www.homify.fr/livres_idees/42924/surprenante-metamorphose-d-une-fe

retour